- Противопожарные нормы при строительстве бани
- Баня: класс функциональной пожарной опасности
- ПБ отдельно стоящей бани
- ПБ сауны внутри дома
- Расстояние от дома до бани по пожарной безопасности
- Противопожарные материалы
- Требования к электрооборудованию
- Как обезопасить баню от возгорания от печки
- Чем обложить / обшить печь
- Как обезопасить трубу дымохода
- Требования ПБ к установке электропечей
- Средства пожаротушения в сауне и бане
- Какой огнетушитель лучше
- Системы пожаротушения
- Нужна ли в бане пожарная сигнализация
- Датчики, извещатели
- Страхование бани от пожара

Высокие требования пожарной безопасности к саунам и баням обусловлены факторами:
- небезопасный температурный режим;
- строение из дерева или обшитое им, смолистые элементы;
- печи;
- компактное пространство;
- вентиляция;
- не все элементы соприкасаются с водой;
- наличие электропроводки.
Примеры причин пожара:
- нарушение правил обращения с оборудованием;
- не выключенная электропечь;
- недостаточная защита между дровяной печью и стенами, дымоходом и перекрытиями / кровлей.
Особенности возгораний в бане:
- выделяется пиролизный газ;
- образуется смесь для самовозгорания;
- эффект всасывания воздуха со взрывом пламени.
Противопожарные нормы при строительстве бани
Пожарные нормы берут из разделов ГОСТов, сопоставляя с классификацией саун/бань по огнеопасности. Применяют:
- по зданиям:
- СНиП 31-05-2003 (СП 117.13330.2011) (п. 6.3.9), 2.09.04-87 (СП 44.13330.2011) (п.п. 2.34, 2.35, 2.36);
- СП 118.13330.2012 (СНиП 31-06-2009), 53.13330.2011, 54.13330.2016, 55.13330.2016 (СНиП 31-02-2001);
- общие нормы:
- СНиП 21-01-97 он же СП 112.13330.2011 – классы ПБ;
- НПБ 110-03, 88-2001;
- ФЗ 123 – технический регламент, пределы огнестойкости, классы ПБ;
- проекты, планирование, размещение:
- СП 11.106-97, 4.13130, 60.13330 (СНиП 41-01-2003);
- оснащение:
- СП 7.13130;
- Правила устройства электроустановок;
- «Методические рекомендации по проектированию бань …».
Баня: класс функциональной пожарной опасности
Согласно нормам ПБ и п. 5.21 СНиП 21.01.97 баням, саунам, оздоровительным заведениям, спортивно-тренировочным учреждениям без трибун, бытовым объектам присвоен класс Ф3.6.
ПБ отдельно стоящей бани
Степень огнестойкости здания сауны:
- огнестойкость – не ниже III;
- на 20 мест и меньше – IV - V.
Требования пожарной безопасности к параметрам помещения:
- парилка:
- объем – от 8 м³, но не больше 24 м³;
- в высоту – не меньше 1,9 м;
- до 2 этажей;
- обособленный выход;
- приточно-вытяжная вентиляция;
- промежуток под дверью – от 30 мм;
- соблюдение расположения по отношению к соседним постройкам, от забора до бани.
ПБ сауны внутри дома
Безопасность по размещению встроенных саун:
- в объектах I - III степеней классов С0 и С1 выделяется:
- огнеупорными преградами I типа с границей стойкости REI-45;
- перекрывающими элементами III типа, REI-45;
- в постройках IV степени, С0 - С3 – указанными конструкциями REI 60;
- обособленный выход для эвакуации, не совмещенный с иными проходами;
- мест в парилке сауны – до 10 чел.
По нормам пожарной безопасности запрещены встроенные сухие бани (сауны) в:
- подвалах (цокольных этажах);
- смежно (над и под) к объектам, где пребывает больше 100 чел. или к жилым комнатам соседних квартир;
- в спальных корпусах;
- под трибунами.
Ограничения не касаются введенных в эксплуатацию заведений до принятия указанных изменений, а также обходит запреты инфракрасная сауна.
Расстояние от дома до бани по пожарной безопасности
Противопожарные правила по размещению:
- расстояние между домом и баней на одном участке:
- кирпичная сауна с негорючей крышей – 8 м от такого же здания, если вторая постройка с горючей крышей – 10 м;
- если крыша у кирпичной бани пожароопасная – 10 м;
- оба здания из дерева – 10 м, если больше 1 этажа –15 м;
- до соседнего дома на другом участке от забора (отступ до границы, но общее расстояние как указано выше):
- без канализации – 3 м;
- с дренажом, сливом – 1 м;
- расстояние от бани до бани соседнего участка. Нормы отдаленности – 10 - 15 м (деревянные) и 6 м (кирпичные) – из табл. 11 ФЗ 123 устаревшие, поэтому применяют правила предыдущих пунктов.
Противопожарные материалы
Рамки огнестойкости материалов сауны:
- степень – I - III;
- пожарная опасность несущих элементов – С0 и С1;
- предел огнестойкости материалов EI-45, EI-60.
Способы и материалы пожаробезопасности саун, как правило, конструктивные:
- перегородки – I, перекрытия – III типа огнестойкости. Допускается применение п/п пластмасс стеклоблоков;
- огнезадерживающие клапаны в вентиляции;
- огнеупорные утеплители для всех нагревающихся элементов, дымохода: базальтовая, минеральная вата;
- отступка, пожарный разрыв – расстояние между приборами и стенами;
- разделки – заполненные/выполненные (кирпичом, вермикулитом и пр.) отступки;
- фартуки;
- облицовка.
Защищать деревянные конструкции бань можно пропитками, но исключительно специальными (не токсичными) и предназначенными для объектов данного типа, желательно антисептическими (против гниения), 1 группы ОЭ. Рекомендована технология глубокой обработки.
Применять составы надо только в определенных местах, так как ОС минимизируют запах натурального дерева, а также для элементов, не соприкасающихся с телом человека (не в парилке, около печей, отдаленные места).
Требования к электрооборудованию
В парных распространено применение электропечей. В помещениях есть также проводка к осветительным приборам. Требования:
- соблюдение ПУЭ;
- надежность электроснабжения:
- 2 категория – от 100 мест;
- 3 категория – до 100 мест;
- кабельные вводы из асбестоцементных труб от 100 мм с уклоном от постройки;
- все кабели термостойкие;
- выключатели в мокрых помещениях не допускаются;
- провода для максимальной температуры в помещении;
- не размещают вводно-распределительные узлы, выключатели под парными, купально-плавательными помещениями, иными мокрыми местами;
- светильники в мокрых и влажных условиях защищаются термостойким стеклом, сеточкой;
- внутренняя проводка:
- алюминиевая;
- в парных – медная с нагревостойкой изоляцией;
- открытая, беструбная (крепится скобами к поверхности) с обмоткой асбестовым шнуром;
- защитное зануление.
Как обезопасить баню от возгорания от печки
Варианты нагрева для саун:
- кирпичная или металлическая печь на дровах;
- электропечи (электрокаменки).
В чем опасность печей:
- вывалка горящих частичек;
- выброс из топливника и корпуса, особенно при аварийных повреждениях (прогораниях корпуса / трещинах кладки):
- искр;
- пламени;
- трудно обнаружимые трещины;
- нагрев корпусом печи окружающих элементов (пол, потолок, стены).
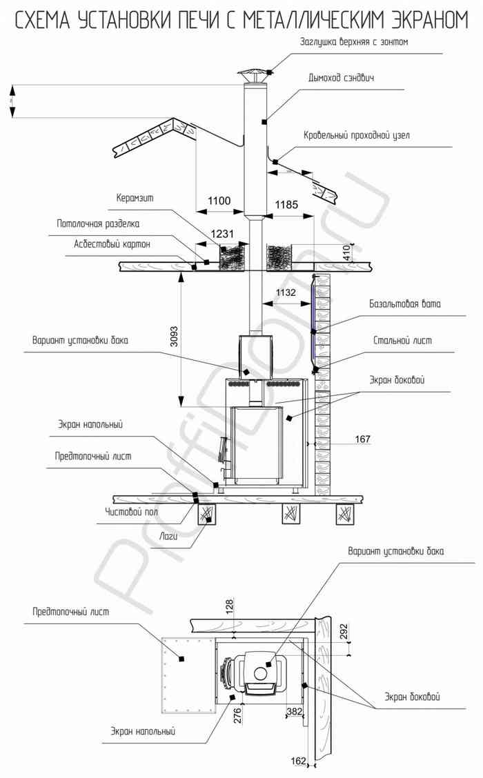
Чем обложить / обшить печь
Меры пожарной безопасности для отопительного оборудования усиленные:
- экраны для банных печей (кожухи):
- кирпич, металл;
- волнистые кровельные материалы;
- штукатурка 25 мм по железной сетке рабице или по асбесту толщиной от 8 - 10 мм;
- футеровка (облицовка) требуется при обогреве металлической печкой:
- пол перед дверцей покрывают стальным листом от 50х70 см. Длинной линией вдоль печки. Вокруг – стальной лист по асбестокартону на 150 мм больше габаритов корпуса;
- подиум и фартук: кирпичный, бетонный, керамический (плитка), асбест и железо;
- для стен: огнезащитные плиты, минеральные утеплители с металлической основой или кирпичом;
- негорючий пол – выше от основного;
- противопожарные расстояния от печи (отступка):
- до горючих полов без защиты – от 210 мм (воздух или кирпич), при наличии защиты – от 100 мм;
- до стен – не меньше 200 мм;
- от потолка не меньше 1200 мм, обязательно с огнеупорным листом;
- ограждения:
- под потолком щит (5 см от поверхности);
- футляры (металлические чехлы) против вываливания топлива, искр, пламени;
- разделки для кирпичных дымоходов – от 500 мм.
Температура для печек по НПБ (можно соблюсти только при наличии экранирования):
- +120°С для корпуса;
- +80°C для стенок;
- снизу +50°C.
Нормы не всегда одинаковые, поэтому также руководствуются:
- инструкцией производителя;
- инженерными соображениями;
- рекомендованными материалами.
Как обезопасить трубу дымохода
Огнезащита дымохода:
- ограждения:
- экранирование стен (металлический лист), одной сэндвич-трубы недостаточно;
- проходной короб с засыпкой;
- межэтажные разделки обязательные;
- кирпичную трубу обмазывают глиной, белят для визуального обнаружения трещин, копоти;
- минимум 380 мм до сгораемых конструкций (стропил, обрешетки крыши);
- разделка дымохода:
- межэтажная вертикальная обязательная: высота от 70 см, толщина от 12 см, для температур от 100°C – 25 см;
- желательная горизонтальная (кладка из кирпича) для чердака;
- теплоизоляция по всей длине;
- ревизионные люки;
- нельзя подключать 2 печки одновременно к одной дымоходной трубе;
- регулярная чистка, осмотр.
Опасность дымоходов:
- забиваются отверстия;
- риск прогорания, трещин;
- нагрев окружающих элементов;
- накопление сажи: слой в 2 – 3 мм пожароопасен.
Требования ПБ к установке электропечей
Нормы, как обезопасить баню от возгорания при применении электрокаменки:
- мощность точно под параметры сауны, но до 15 кВт;
- самовыключение после 8 ч. работы;
- узел управления в сухом месте перед парилкой;
- все кабели в противопожарной изоляции;
- проводка к шкафу управления:
- медная;
- в трубах из стали в бетонной подготовке полов;
- сетка выравнивания потенциала;
- расстояние до стен – до 20 см, под потолком над прибором – теплоизоляционный щит с расстоянием до обшивки не меньше 5 см.
- в автоматическом режиме температура в парилке до +110°C, автоотключение при +130°С.
Средства пожаротушения в сауне и бане
Для частных парных нет требований по сигнализациям, установкам тушения. Но, если это общественное, коммерческое здание, то защитить баню от пожара надо обязательно системами тушения, извещения.
Какой огнетушитель лучше
Особенности по огнетушителям:
- ОУ – эффективные, но есть риск отравления углекислотой (требуют спецзащиты), не смачивают, возможны холодные ожоги;
- ОВ, ОВП – быстро заканчиваются, со слабой струей;
- ОП – универсальные, создают негорючий слой из порошка;
- ОВЭ – эффективные, безвредные.
{banner_downtext}
Для бань рекомендован воздушно-эмульсионные огнетушители, желательно от 8 л, и порошковые особенно для объектов с электрокаменкой, поскольку тушащее вещество не проводит электричество.
Системы пожаротушения
Парилки в общественных и коммерческих заведениях обязательно оснащаются автоматическими дренчерными системами пожаротушения:
- сухотруб;
- источник – внутренний водопровод;
- автоматический и ручной пуск одновременно;
- пульт, вентиль в отдельном помещении поблизости или перед входом.
Иногда ставят спринклеры, но со срабатыванием от +125°C, и в этом есть логика, поскольку уменьшается потребность в открывании дверей, приводящему к взрыву пламени. Пенные и водные установки (дренчеры, спринклеры, ТРВ) – стандарт для саун.
Нужна ли в бане пожарная сигнализация
Инструкция о мерах безопасности не содержит требований к наличию пожарной сигнализации в частных банях, но оборудование обязательное для общественных и коммерческих заведений.
По НПБ 110-03 сауна – здание общественного, бытового назначения и должна оснащаться автоматическими сигнализациями, кроме мокрых помещений (парилки, душевые, мойки).
Датчики, извещатели
В раздевалках, предбанниках, вспомогательных частях (не мокрых) обязательно ставят тепловые пожарные извещатели, обнаружители дыма. В мокрых помещениях (парилки) датчики ставят реже или не применяют, но они и не запрещены. Есть специальные устройства для бань, например, ИП 105-1 G «Сауна-150» со срабатыванием при +110°С.
Страхование бани от пожара
Страховой полис для бани не только возможен, но и желателен – он может возместить убытки в случае пожара. Но строение при этом должно иметь акт о пожарозащите от ГПС.
Иногда даже при наличии надежных мер пожарной безопасности постройку не удается потушить. Это способны сделать только пожарные расчеты, но к их приезду часто строение критически повреждено огнем.
