- Требования к шкафам пожарных кранов
- Что должно находиться в ШПК
- Как должен располагаться кран в пожарном шкафу
- Что должно быть на дверце ШПК
- Устройство пожарного шкафа с краном
- Виды ШПК
- Шкаф пожарный ШПК 310
- Шкаф пожарный ШПК 315
- Шкаф пожарный ШПК 320
- Шкаф пожарный ШПК 321
- Таблица сравнительных характеристик
- Правила установки пожарных шкафов ШПК
- Как и кто осуществляет контроль за состоянием ШПК
Пожарные шкафы для пожарных кранов или других средств пожаротушения эксплуатируются согласно нормам НПБ:
- главные положения:
- общие:
Пожарный шкаф (модуль) – емкость (ящик) для компактного размещения, хранения, защиты от влияния окружающей среды средств, применяемых во время тушения возгораний.
Задача ШПК – обеспечить удобство, простоту, оперативность применения, сохранность инвентаря, приспособлений, а также служить указателем на место их нахождения.
Требования к шкафам пожарных кранов
ШПК должен изготавливаться по утвержденной НПБ конструкторской документации. Комплект документов включает: схемы установки, паспорт (сертификат), чертеж.
Характеристики:
- материалы корпуса – негорючие:
- металлические листы: сплавы алюминия, сталь до 1,5 мм;
- п/п пластик;
- дерево, обработанное антипиренами;
- конструкция должна иметь:
- естественную вентиляцию совокупно от 10 см на нижнем и верхнем сегменте дверок или на боковых стенках. Как правило, с торца, минимум 6 отверстий;
- крепления;
- возможность смазки элементов;
- дверки:
- открывающиеся на 160°;
- позволяют без затруднений брать рукав, первичные средства пожаротушения;
- с возможностью опечатывания, фиксации;
- на открытие – до 15 сек.;
- габариты:
- макс. масса (кг): навесные – 35, встроенные – 50, напольные – 60;
- глубина – до 300 мм;
- корпус держит груз в 1,5 тяжелее массы предметов;
- антикоррозийное покрытие не ниже 4 класса, выдерживающее от -50 до +50 °C;
- цвет:
- красный;
- иные цвета (чаще белый), но на корпусе должен присутствовать красный (есть на знаках ППБ).
Расположение предметов:
- для каждого отдельное место, полка, отсек;
- складирование разных средств запрещено всегда;
- друг на друге размещать можно огнеупорные накидки, самоспасатели;
- вместе можно размещать (не складировать) разные предметы, кроме немеханизированных и огнетушителей;
- не создает трудностей с доступом, вытаскиванием.
Что должно находиться в ШПК
В комплекте с рукавом и огнетушителем может поставляться иной инвентарь:
- обычные модели:
- рукавное оборудование:
- головка (зажим);
- рукав;
- ствол;
- переносные огнетушители;
- рукавное оборудование:
- интегрированные ШПК (ШПМИ) вместительнее:
- канатно-спусковое приспособление;
- самоспасатели;
- огнеупорные накидки, кошма;
- аптечка;
- пожарный инструментарий:
- лопата;
- багор;
- ведро;
- топорик;
- крюк;
- ножовка;
- ножницы для проводов.
Как должен располагаться кран в пожарном шкафу
Корпус ШПК оснащен отверстиями для ПК (клапана углового, прямоточного). Требования:
- рукав присоединяется удобно, легко, без сильных сгибов;
- маховик охватывается, вращается без затруднений;
- развертывание рукава не мешает доступу к огнетушителям;
- рукавная кассета:
- беспрепятственное вращение по горизонтали на 90° и больше;
- нагрузка в статике от 300 H;
- рекомендована укладка рукава в шкаф «гармошкой» (двойной скаткой), не улиткой;
- рукав со стволом – присоединенный к клапану, в режиме готовности.
Высота установки шкафа учитывает размещение ПК, который по НПБ находится на расстоянии 1 м 35 см (±0,15) от пола. В сдвоенных кранах нижний клапан разрешено располагать на 80 см от пола, верхний – на 1 м 50 см. Кассета с рукавом может располагаться вверху или внизу от трубы, высота до крана – удобная для корпуса.
Что должно быть на дверце ШПК
На внешних плоскостях и на дверцах шкафа должны быть указаны:
- в обязательном порядке:
- пожарная разметка (предметы внутри). Значки:
- крана, буквы ПК, номер, если есть;
- обозначение огнетушителя;
- пожарная разметка (предметы внутри). Значки:
- на дверце указывается в рекомендательном порядке:
- телефон пожарной службы;
- памятка как пользоваться (наклейка);
- схема, перечень средств (не понадобится, если есть окно/остекление).
Устройство пожарного шкафа с краном
Составляющие ШПК с пожарными кранами:
- клапан запорный (узел с ЗПУ, маховиком);
- рукав (10, 15, 20 м стандартно на 1 - 1,5 мПа) с уже установленной головкой, стволом, подсоединенный;
- кассета рукавная (короб).
Виды ШПК
Пожарные ящики выпускаются нескольких видов. Есть классификация по разным определяющим:
|
Параметр |
Виды |
|
Установка |
Крепящиеся:
|
|
Средства |
|
|
Варианты |
|
В стандартном сортаменте нет образцов для двух кранов и двух огнетушителей одновременно. Не допускается размещение в одном коробе двух ПК, это возможно только для спаренных кранов. Для огнетушителей можно сделать на заказ или приспособить готовый ящик любой вместимости, но для кранов есть описанное ограничение.
Условное обозначение пожарного короба – ШП, но на схемах зачастую обозначают только то, что в нем находится: ПК (F02), сухотруб (F08), кнопка автоматики (F10), огнетушитель (F04), инвентарь, а чаще «Пожарное оборудование» (F06).
Буквы в маркировке:
- О – открытые;
- З – закрытые;
- В – встроенный;
- Н – навесной;
- К – красный;
- Б – белый;
- П – правый;
- Л – левый.
Первые буквы – тип (Н, В или П). Пример ШПК-315ВОБЛ – встраиваемый, с окном, белый, дверца влево.
Шкаф пожарный ШПК 310
ШПК-310 (он же ШП-01, Ш-ПК-001 «Т») – стандартный распространенный ящик для крана (для одного ПК):
- с задней стенкой или без;
- клапан ДУ 50 (диаметр условный или DN), ДУ 65;
- пожарный рукав с кассетой, ствол, головки;
- с двух сторон по бокам – надрубы под трубу ПК (диаметром 85 мм);
- материал: стальной лист 0,7 мм;
- дверки глухие или с окном;
- замок, ручка защелка («евроручка»).
Модификации: ВЗК, ВОК, ВОБ, ВЗБ. НЗК, НЗБ, НОБ, НОК.
Шкаф пожарный ШПК 315
ШПК-315 – для одного шланга (ПК), и огнетушителя. Имеет два отделения по горизонтали (без перегородки внутри) с отдельными дверцами – узкими и широкими. Остальное характеристики как у ШПК-310.
Шкаф пожарный ШПК 320
ШПК-320 (он же ШП-К-О-20) – для ПК (DN 50 или DN 65) и двух огнетушителей с общей массой заряда до 10 кг. Можно поместить два ОП-4, ОП-5 (порошковые) или ОУ-2, ОУ-3 (углекислотные).
Внешний вид: короб с двумя одинаковыми по объему квадратными отделениями по вертикали, между сегментами – сплошная перегородка. Варианты: ВОК, ВЗК, ВЗБ, ВОБ, НЗБ, НОБ, НОК, НЗК.
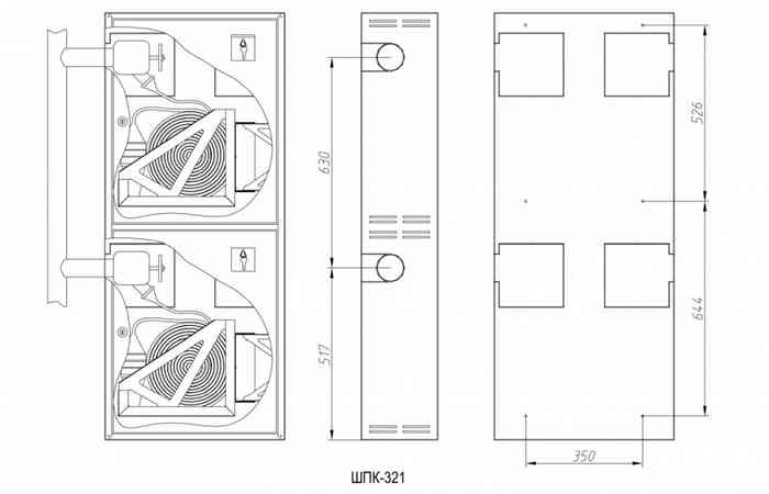
Шкаф пожарный ШПК 321
Модель ШПК-321 идентичная 320, но это шкаф для двух кранов (DN 50, DN 65). В каждом – по поворотной кассете с универсальной ориентацией для шлангов, с головками, брандспойтами.
Таблица сравнительных характеристик
Реализация ШПК осуществляется предприятиями, работающими со спецоборудованием, имеющим в ОКПД 2 идентификатор 28.99.39.190. Корпус, полочки рассчитаны на определенный вес, параметры огнетушителей. Размеры зависят от вместимости. С помощью таблицы можно сравнить подробно эти и другие данные.
|
Наименование |
Габаритные размеры, мм, не более (в-высота, ш-ширина, г-глубина) |
Количество |
Хар-ки внешнего вида |
Масса, кг, не более |
|||||
|
шкафа |
рамки |
огнету- шителя |
кранов |
огнету- шителей |
тип шкафа |
тип двери |
шкафа |
огнету- шителя |
|
|
ШПК-310-НЗ л |
в=650 ш=540 г=230 |
― |
― |
1 |
― |
навесной |
закрытый |
10,8 |
― |
|
ШПК-310-НЗ п |
|||||||||
|
ШПК-310-НО л |
открытый |
||||||||
|
ШПК-310-НО п |
|||||||||
|
ШПК-310-ВЗ л |
в=700 ш=590 г=20 |
встроенный |
закрытый |
12,4 |
|||||
|
ШПК-310-ВЗ п |
|||||||||
|
ШПК-310-ВО л |
открытый |
||||||||
|
ШПК-310-ВО п |
|||||||||
|
ШПК-315-НЗ л |
в=650 ш=830 г=230 |
― |
h=530 Ø140 |
1 |
1 |
навесной |
закрытый |
16 |
8 |
|
ШПК-315-НЗ п |
|||||||||
|
ШПК-315-НО л |
открытый |
||||||||
|
ШПК-315-НО п |
|||||||||
|
ШПК-315-НКк л |
открыта кассета пож. рукава |
||||||||
|
ШПК-315-НКк п |
|||||||||
|
ШПК-315-НКо л |
открыт огнетуши- тель |
||||||||
|
ШПК-315-НКо п |
|||||||||
|
ШПК-315-ВЗ л |
в=700 ш=800 г=20 |
встроенный |
закрытый |
17,6 |
|||||
|
ШПК-315-ВЗ п |
|||||||||
|
ШПК-315-ВО л |
открытый |
||||||||
|
ШПК-315-ВО п |
|||||||||
|
ШПК-315-ВКк л |
открыта кассета пож. рукава |
||||||||
|
ШПК-315-ВКк п |
|||||||||
|
ШПК-315-ВКо л |
открыт огнетуши- тель |
||||||||
|
ШПК-315-ВКо п |
|||||||||
|
ШПК-320-НЗ л |
в=1280 ш=540 г=230 |
― |
h=530 Ø140 |
1 |
2 |
навесной |
закрытый |
18,8 |
16 |
|
ШПК-320-НЗ п |
|||||||||
|
ШПК-320-НО л |
открытый |
||||||||
|
ШПК-320-НО п |
|||||||||
|
ШПК-320-НКк л |
открыта кассета пож. рукава |
||||||||
|
ШПК-320-НКк п |
|||||||||
|
ШПК-320-НКо л |
открыт огнетуши- тель |
||||||||
|
ШПК-320-НКо п |
|||||||||
|
ШПК-320-ВЗ л |
в=1280 ш=540 г=230 |
в=1330 ш=590 г=20 |
h=530 Ø140 |
1 |
2 |
встроенный |
закрытый |
20,8 |
16 |
|
ШПК-320-ВЗ п |
|||||||||
|
ШПК-320-ВО л |
открытый |
||||||||
|
ШПК-320-ВО п |
|||||||||
|
ШПК-320-ВКк л |
открыта кассета пож. рукава |
||||||||
|
ШПК-320-ВКк п |
|||||||||
|
ШПК-320-ВКо л |
открыт огнетуши- тель |
||||||||
|
ШПК-320-ВКо п |
|||||||||
|
ШПК-321-НЗ л |
в=1280 ш=540 г=230 |
― |
― |
2 |
― |
навесной |
закрытый |
20,4 |
― |
|
ШПК-321-НЗ п |
|||||||||
|
ШПК-321-НО л |
открытый |
||||||||
|
ШПК-321-НО п |
|||||||||
|
ШПК-321-НКк л |
открыта кассета пож. рукава |
||||||||
|
ШПК-321-НКк п |
|||||||||
|
ШПК-321-ВЗ л |
в=1330 ш=590 г=20 |
встроенный |
закрытый |
22,4 |
|||||
|
ШПК-321-ВЗ п |
|||||||||
|
ШПК-321-ВО л |
открытый |
||||||||
|
ШПК-321-ВО п |
|||||||||
|
ШПК-321-ВКк л |
открыта кассета пож. рукава |
||||||||
|
ШПК-321-ВКк п |
|||||||||
Правила установки пожарных шкафов ШПК
Требования пожарной безопасности по монтажу:
- корпус не должен причинять неудобства при эвакуации, загромождать выходы;
- доступ свободный, отсутствие:
- завалов товара, складирования, мебели, стопок документов рядом;
- преград для разматывания, вытаскивания из кассет, отсоединения, прокладки рукавов;
- норм по высоте, ширине установки нет, но если есть ПК, то расстояние от пола до ШПК «привязывается» к нему;
- размещать ПК снаружи ШП запрещено. Вентиль, отсекающий кран можно так размещать, но не клапан;
- установка проводится с пломбировкой крана;
- зачастую шкаф опечатывается, если есть ПК, кнопки автоматики;
- ящик должен запираться;
- требования к месту:
- не вблизи нагревательных приборов;
- не на прямом солнечном свете;
- в локациях, защищенных от агрессивных условий;
- оптимальный режим: влажность 90%, от +5 до +45 °С.
Правила пользования:
- дверки всегда закрыты;
- средства исправные, непросроченные;
- ремонтные работы не должны заграждать, ограничивать дверцу;
- инвентарь – в режиме готовности;
- перекатка рукава – минимум 1 раз в год на другое ребро;
- не использовать шкафы для иных целей;
- каждый ПК снабжается рукавом подходящего диаметра, стволом;
- если ШПК несколько, следует использовать одинаковые детали, диаметры.
Как и кто осуществляет контроль за состоянием ШПК
Проверка ШПК проводится инспектором не реже дважды в год (весной и осенью) с составлением актов. Процедура включает:
- внешний осмотр;
- ревизию;
- проверку на работоспособность, наличие пломб.
На предприятиях, в организациях контроль осуществляют ГПН и лица, ответственные по штатным обязанностям за пожарную безопасность (инженеры по охране труда, руководители цехов, другие сотрудники по усмотрению руководства). Обязанности закрепляются приказом.
Ответственное лицо вправе произвести контроль, осмотр в любое время с составлением акта, опечатыванием, если этого потребуют обстоятельства: отправка огнетушителей на заправку, перекатка, обслуживание. Техническое обслуживание возложено на профильные организации.
