
Огнезащитные противопожарные муфты на канализацию и водопровод (ППМ) ставят в первую очередь на пластиковые трубы, что делает возможным их применение там, где надо выполнить требования ПБ. Полимерные трубопроводы снижают стоимость строительства и уменьшают нагрузку на несущие элементы зданий.
Огнезащитная муфта: что это
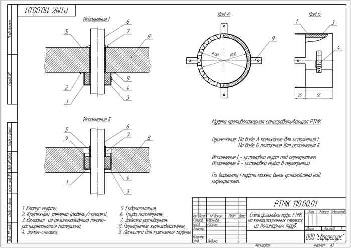
Основной способ огнезащиты трубы из полимеров – противопожарная самосрабатывающая муфта. Есть два элемента ограждения: манжета и гильза, под которыми понимают отдельные изделия или составляющие одной конструкции. Защитные элементы называют обобщенно – муфтами, и наоборот: к ППМ иногда применяют указанные два термина как равнозначные, но все же правильнее их разграничивать.
Огнезащитная пожарная муфта – это ограждение в виде гильзы с манжетой со вспучивающимся при высоких температурах веществом, подходящее для диаметра трубы и надеваемое на нее в канале внутри плиты. Устройство и его действие напоминает противопожарные кабельные проходки.
Материалы:
- сталь (стандартно от 0,8 мм);
- терморасширяющиеся (вспучивающиеся) прослойки. В составе часто используют интеркалированный графит, пенококс;
- обработка поверхности (может быть и без нее): порошковая огнестойкая краска.
Противопожарные манжеты
Противопожарные манжеты для пластиковых (водопроводные, отопление) труб – элементы, удерживающие и фиксирующие вспенивающийся наполнитель. Устройство:
- внешняя оболочка из нержавеющей стали с замком (защелка, хомут);
- внутри – прокладка из вспучивающегося при высокой температуре материала;
- есть два варианта крепления муфты:
- на тело трубы (замок-защелка, обжимной хомут);
- дополнительно для манжеты – фиксация к плите (полу, потолку) дюбелями, самонарезами через лепестки.
Для внешней оболочки используется сталь: свойства металла позволяют нагреваться корпусу оптимальное время для срабатывания огнезащитной вспучивающейся прокладки и одновременно быть устойчивым к пламени.
Противопожарные гильзы
Гильзы или футляры – цилиндры из простой или оцинкованной стали (0,05; 0,2; 0,8 мм), реже НГ полимер с расширяющимся огнезащитным составом. Чаще это специально созданные заводские изделия с прокладкой, надеваемые на трубу внутри канала (в плите, перекрытии, перегородке). Зазоры от стены могут заделываться противопожарными термостойкими герметиками, пеной для проходок.
Способы крепления как у противопожарных манжет, а также применяется (реже) внутренняя фиксация ППМ к стенкам ограждающей конструкции цементно-песчаным раствором.
Задачи и особенности гильз из огнестойких материалов:
- для ГВС и отопления обязательные СНиП 41-01-2003 п. 6.4.5 (СП 60.13330);
- фиксируются раствором к стенкам перекрытия или хомутом к защищаемой поверхности, но внутри должен быть промежуток с НГ веществом: труба при нагревании/охлаждении расширяется/сужается, поэтому должна «гулять». В противном случае может произойти разрыв трубы и ограждающих конструкций, по стене пойдут трещины;
- функции:
- огнепреграждение, автоматическая самосрабатывающая заделка проемов от проникновения пламени и продуктов горения;
- защита от шума, влаги, запахов, грызунов, насекомых, микроорганизмов;
- футляры позволяют заменить трубу без пробивки дополнительных отверстий;
- усиление фиксации, герметизации.
Стандартно ППМ со вспучивающимся огнезащитным составом имеет стальной корпус. В роли прокладки выступают те же термореагирующие материалы, как у огнестойких кабельных проходок.
Для чего нужны и где устанавливаются ППМ
Вкладыш ППМ, расширяясь, герметизирует отверстие при выгорании пластика, а также в стыках, зазорах. Плотная пробка перекрывает доступ кислорода, создавая преграду для огня, продуктов горения. Если защита отсутствует, то пламя выжжет трубу и произойдет дальнейшее распространение пожара по зданию через образовавшиеся проходы.
Строительные нормы СП 30.13330 (СНиП 2.04.01-85) предписывают для водопроводов и канализации в зданиях определенный уровень огнестойкости. Пластик может его обеспечить, только когда монтируется с противопожарной защитой.
Обязательность ППМ предусмотрена актами:
- ФЗ N 123 ст. 137 п. 4 узлы пересечения должны иметь огнеупорность не ниже ограждения;
- ГОСТ Р 53306 п.п. 3.1, 3.2: для трубопроводов из полимеров предписываются отсечные защитные устройства, обжимные муфты из расширяющихся материалов;
- СП 40-107-2003 п. 4.23 для ПП канализаций надо монтировать ППМ со вспучивающимися прослойками;
- СП 41-102-98 п. 5.7 – обязательность гильз для труб;
- рекомендательные материалы – ТР 83-98 (НИИМосстрой). Пункт 2.1: в многоэтажных жилых зданиях и сооружениях социально-культурного назначения рекомендовано использовать огнестойкие преграды – муфты со вспучивающимися прокладками EI 90 – EI180.
ППМ для пластиковых конструкций обязательные в местах пересечения противопожарных преград, перегородок (даже гипсокартонных), стен, перекрытий, панелей. Это обусловлено свойствами их материалов – поливинилхлоридов, полиэтиленов, полипропиленов, – выгорающих с образованием сквозных отверстий в проемах.
Муфты выполняют роль противопожарных отсечек:
- на проходах через перекрытия;
- внутри технических этажей;
- в местах вывода на крышу.
Обязательными являются муфты в категорируемых и нормируемых зданиях (производственных, складских), а также в общественных сооружениях, в МКД, если трубопроводы там пластиковые.
Надо ли ставить на стальные трубы
По НПБ именно противопожарные футляры обязательные только для внутренних магистралей из полимеров. Для чугунных или стальных труб (простой, нержавеющий, оцинкованной) огнестойкие гильзы не требуются, но и не запрещены – монтаж возможен, если это уместно, по желанию владельца помещения и по рекомендациям специалистов по ПБ.
Как работает муфта при пожаре
Алгоритм активации и принцип работы ППМ:
- Внешние отрезки труб выгорают до манжеты около перекрытия, плиты.
- Сталь корпуса передает тепло на вкладку, которая выдерживает температуры до +800 – +1000 °C и больше, – выше тех, из-за которых выгорел пластик.
- Прокладка расширяется, плотно закрывая отверстие на выгоревшем месте, таким образом, преграждает путь для распространения пламени и дыма. Гильза имеет тот же принцип – она уплотняет зазоры, защищает от проникновения пожара.
Видео установки и испытаний ППМ Огнеза:
Требования к противопожарным манжетам и гильзам
Материал полимерных водопроводов: обычно это самозатухающий поливинилхлорид категорий Г1, Г2, реже используются негорючие полиэтиленовые или полипропиленовые трубы. Изделия маркируются: PP, PE, PVC, PE, PE-HD, PVC, PVC-U. Чаще всего ППМ для указанных полимеров универсальные.
Основное требование – соответствие пределу огнестойкости ограждающей конструкции по табл. 23 ФЗ N 123. Противопожарная муфта должна быть полностью НГ, сохранять установленное для нее изготовителем время, (стандартно до 120 – 180 мин.), свои противопожарные свойства (EI, EIW):
- E – целостность;
- I – изолирующие качества;
- W – выдерживание теплового потока критической температуры.
Марки и производители ППМ
Изготовители ППМ, это компании, специализирующиеся на огнезащите. Параметры для манжет и гильз по огнестойкости находятся в диапазоне: EI 90 – 180 (стандартно 120 – 180), в особых случаях – 240, температура эксплуатации -40 до +95 °C, срок работоспособности 25 – 30 и больше лет без технического обслуживания.
Сертификат соответствия обязательный. В маркировке часто присутствует буква R, обозначающая трубные вводы, например, манжета R 90 системы REHAU PLUS.
|
Марка |
Модель |
Коэффициент расширения |
Температура расширения (+°C)/начало (сек.)/полная герметизация (мин.) |
|
Hilti |
|
1:4 1:17 |
210 – 250/15/3 – 4 |
|
Rehau |
RAUPIANO PLUS |
1:17 |
200/10/3 – 5 |
|
Geberit |
Geberit RS90 Plus |
200/15/4 |
|
|
BIS |
BIS Pacifyre MK II |
140/10/4 |
|
|
РТМК |
РТМК-25 – 200 |
170 – 200/15/2 – 5 |
|
|
Огнеза |
Огнеза-ПМ 16, 20, 25, 32, 40, 50, 65, 80, 90, 110, 125, 160, 200, 225, 250 |
900% |
150/15/4 |
|
Эгида |
Эгида-ПМ 20 – 200 |
200/10/до 14 |
|
|
Огнебарьер |
Огнебарьер-МП 16 – 160 |
120/15/4 |
|
|
Балтика |
Балтика-ПМ 16 –250 |
120/15/7 |
|
|
Ostendorf |
BS HT Scolan |
120/15/2 – 5 |
Сертификаты ПБ на ограждающие огнестойкие узлы для труб:
Скачать: Hilti CP 643 N.pdf
Скачать: Hilti CP 644.pdf
Скачать: Балтика ПМ.pdf
Скачать: Огнебарьер МП.pdf
Скачать: Огнеза-ПМ.pdf
Скачать: РТМК.pdf
Как правильно установить огнезащитную муфту
Муфта монтируется при прокладке инженерных систем или на установленные трубопроводы – это позволяет делать раскрывающаяся конструкция с замком-стяжкой или защелкой, также обеспечивающей простоту замены.
Скачать: Применение пожарозащитной манжеты Hilti.pdf
Алгоритм монтажа противопожарных муфт на пластиковые стояки канализации, водопровода, отопления и другие инженерные системы (рекомендовано обратить внимание на Р.2 ТР 83-98):
- Гильзу надевают на отрезок в проходке.
- Концы должны выступать на длину манжеты. Далее, раскрывают элемент и вставляют в него термореагирующий материал. Отгибают лепестки крепления.
- Надевают манжету на выступающие отрезки. Проверяют качество прилегания. Не рекомендовано надевать на «голую» трубу, хотя в некоторых случаях допускается.
- Отмечают через отверстия в лепестках точки, снимают устройство, сверлят перфоратором (сверла 0,6 – 0,8 мм) в перекрытии отверстия для дюбелей/анкеров.
- Надевают снова манжету, плотно затягивают замок, прижимают к перекрытию, заколачивают полностью металлические дюбели/анкеры, вкручивают винты/анкерные болты.
Скачать: Инструкция установки ППМ Огнеза.pdf
Скачать: ППМ марки Rehau.pdf
Скачать: Инструкция по монтажу ПМ Hilti CP 644.pdf
Есть другие варианты монтажа, но они применяются реже: муфта без манжеты с заделкой гильзы негорючим материалом или только рукав у входов в проходку, а также крепление к стенкам канала раствором.
Производителями устанавливаются граничные температуры плавления пластика, при которых применяют муфты, обычно до +180 °C. Зазор между трубой: 5 – 10 мм или 10 – 20 мм в зависимости от модели ППМ. Внутренний диаметр изделия для типовых размеров водопроводов указывается в ТД.
Если рабочие температуры трубопровода высокие, то сначала надо нанести дополнительную изоляцию, а затем уже устанавливать устройство.
По п. 3.5.6 СП 40-108 муфта должна допускать перемещение/скольжение трубы по продольной оси. Рекомендовано делать выступ над уровнем пола на 1 – 3 см для изоляции от воды при потопе и улучшения защиты от огня.
